Cửa tủ hai cánh được làm từ gỗ, thủy tinh hoặc có khung nhôm
Chất liệu: Nhựa, thép, nắp chụp: Nhựa
Màu/Lớp phủ hoàn thiện: : Mạ nikel, Nắp chụp: Xám/Đen Anthracite
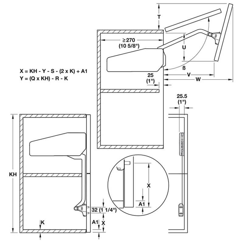
Trọn bộ gồm: 1 bộ phụ kiện lắp đặt tay nâng Free Fold Short (Có kèm bas, hướng dẫn sử dụng và mẫu khoan trên giấy, 1 cặp nắp chụp (Trắng/Đen Anthracite), 2 bản lề âm với đế gắn và 2 bản lề kết nối.
Đóng gói: 1 bộ
Ưu điểm tay nâng Hafele FREE FOLD SHORT
Nâng những cánh tủ cao để tiết kiệm diện tích
Khi mở ra không chiếm nhiều không gian
Dễ dàng sử dụng tay nắm
Ngay cả những cánh tủ nặng nề cũng có thể được mở nhẹ nhàng, êm ái
Khóa dừng an toàn
Kết hợp sử dụng với bản lề âm 110º theo tiêu chuẩn
Hạn chế tối đa lực cản khi mở, có thể khóa dừng tại nhiều vị trí với cơ chế đóng mở giảm chấn, giúp cánh tủ hoạt động dễ dàng và êm ru
Lắp đặt dễ dàng và nhanh chóng nhờ chốt cài, bộ ốc vít chuẩn Châu Âu đã được lắp đặt trước và hệ thống cánh tủ được cố định dễ dàng
